近幾十年來,數字化的不斷進步深刻地改變了我們的生活。我們日常生活的每個領域都離不開數字電路。功能越來越強大的微控制器使得將模擬信號轉換為高分辨率數字信號成為可能。在選擇上游測量放大器的電阻時需要考慮哪些因素?為了使模擬電路適合數字電路,有哪些可能避免的錯誤?
在大多數情況下,模擬信號由阻抗比決定。如果硬件開發人員能夠了解長期保持穩定的精密模擬電子電路的好處,他們就可以利用數字系統的完整分辨率。本文將重點討論線性固定電阻器的阻抗。

數字化是將數值空間和時間空間中連續的信號轉換為數值空間和時間空間中離散的信號。

表1 :A/D轉換器最重要的參數及其對應值
A/D 轉換器的分辨率會具有另外的作用。其他基本條件(例如 Kotelnikov 和 Shannon 的採樣定理、混疊濾波器或各種類型的 A/D 轉換器)不在本文討論範圍之內。

在測量技術領域,信息並不能始終用作數字或頻率信號。信號幅度必須使用分壓器降低到適合 A/D 轉換器的水平,或者使用放大器而提高。分壓器的比例因子或運算放大器的增益因子取決於兩個電阻的相對性能。這意味著只要兩個電阻的性能同樣好或同樣差,兩個電阻的比率就始終相同,因此,電路與電阻的屬性無關。然而,電阻器的屬性永遠不會相同,這意味著兩個電阻器的比率會發生變化。該比率隨環境溫度、功耗和不同薄膜溫度下的老化而變化。

本例採用分壓器研究環境溫度對各種溫度係數的影響。形成完整的差分會產生一個近似方程式,而該方程式可以估算由於環境溫度變化引起的電阻變化對於比例因子產生的影響。

假定 A/D 轉換器的分辨率對應於允許的誤差,並且兩個電阻器都經歷相同的溫度變化,則根據所要求的 TCR 跟踪,通過置換而得到以下近似方程式。

在電子表格程序中,兩個電阻器的必要 TCR 跟踪可以根據彼此數據相互估算,作為分壓器所需精度和所用溫度範圍的函數。
對於緊鄰參考溫度範圍內運行的應用,如音頻,必要的 TCR 跟踪表明溫度係數之間允許存在相應的較大偏差。然而,如果對精度的要求很嚴格,則建議在溫度波動約 10K 時使用高級薄膜電阻器。


電路中的電阻會受到環境溫度和功耗的影響。在此類應用中,電阻值根據溫度應力和所使用的電阻材料而以不同的速率變大或變小。如果電阻因溫度差異而出現不同程度的老化,分壓器的比例因子將在使用壽命內變化。為了最大程度地降低質量維護和校準成本,對於精密測量工程,必須考慮具有相同溫度係數和容差對的電阻器。如果將所需的電阻器設計在一個基板上,則所有電阻器均由溫度係數幾乎相同的同一電阻材料製成。由於在相同的基板上,電阻器在使用期間要承受相同的溫度。結果,老化效應的速率和幅度實際上也相同。
下圖顯示了用於芯片排阻器的陶瓷基板。每個單獨的芯片排阻器上至少存在兩個具有相同屬性的電阻器。此例中採用一個具有四個單獨電阻值的排阻器。

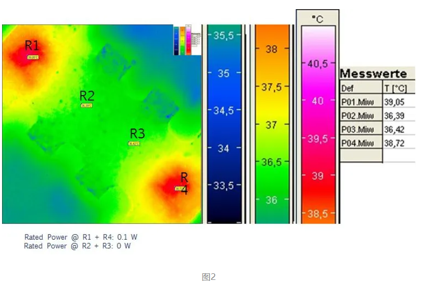
溫度對電阻器性能的影響幾乎毫無關聯,因為芯片排阻器由相同的電阻材料製成,並且由於共同的 TCR 退火工藝,它們的溫度係數曲線幾乎相同。如果施加在芯片排阻器上的應力不同,則溫度較高的電阻器會將承受較小應力的電阻器升高到幾乎相同的溫度。在測量溫度時,滿負荷電阻與無負荷的電阻之間僅測得約 3K 的溫差(見圖2)。
有了這些結果,各個電阻器的值變化可以使用漂移方程來估算,而且可以確定每個電阻器的相對偏移變化。下圖3 顯示,在 8 位 A/D 轉換器中使用的分立式薄膜電阻器的漂移可以忽略不計,但對於 10 位轉換器,LSB 僅在 5000 小時後出現誤差。對於 12 位及更高位的轉換器,建議使用芯片排阻,因為即使在運行的最初幾個小時內,分立式電阻的阻值變化仍會超過分辨率。


仍然需要指出的是,可根據要求為芯片排阻提供公差匹配。通過此功能,如果有必要,可以消除電子生產線末端的校準步驟,從而提高 SMD 生產線的效率。

用於高分辨率數字系統的模擬信號處理是一項有挑戰性的綜合任務。為了使工作能夠以更具結構化的方式手動進行,以下是一些處理電阻器或開發具有高數字分辨率的模擬電路的基本規則:
勿將分壓器直接連接到 A/D 轉換器。要始終在二者之間連接阻抗轉換器
如果使用的溫度偏離 +20°C 的電阻器參考溫度,則注意 TCR 效應
電阻器的 TCR 不是線性的
電阻器的 TCR 隨生產批次而不同
一個包裝批次中可以有兩個生產批次
使用樣品在實驗室中可行的操作在第一批產品的生產中可能會出錯
為了最大程度地減小功耗對偏移量的影響,應使用盡可能大的電阻
在一個信號路徑中,將電阻器盡可能靠近放置,使它們溫度保持接近
注意!注意絕緣坐標
注意熱效應(塞貝克效應)
避免使用徑向佈線的電阻;最好採用軸向設計
僅將 SMD 電阻放置在與熱流平行的位置
注意與電路板走線的熱關係相同
使用盡可能長期穩定的電阻
注意 EN 60115-1 中連續負荷條件下的漂移規格
“典型”規格表示未經統計驗證的平均值
盡可能使用薄膜芯片排阻器,因為這些產品提供了 TCR 和偏移跟踪或公差匹配
所有行業領域都使用檢測模擬信號並針對數字電路進行處理的方式。沒有一個電阻器系列可以滿足所有領域的要求。因此,Vishay 推出了廣泛的產品組合。在初步選擇時需要提供支持的客戶以及有特殊問題的客戶可以直接聯繫適當的產品專家。
評論